Lakeside Storm Drain Pump Station Structural Design

Project: Lakeside Storm Drain Pump Station

Firm of Record: Wood Rodgers, Inc.

My Role: Structural Designer (under supervision of Anthony Johnson, PE, SE)

The Challenge: Critical Infrastructure Below Grade

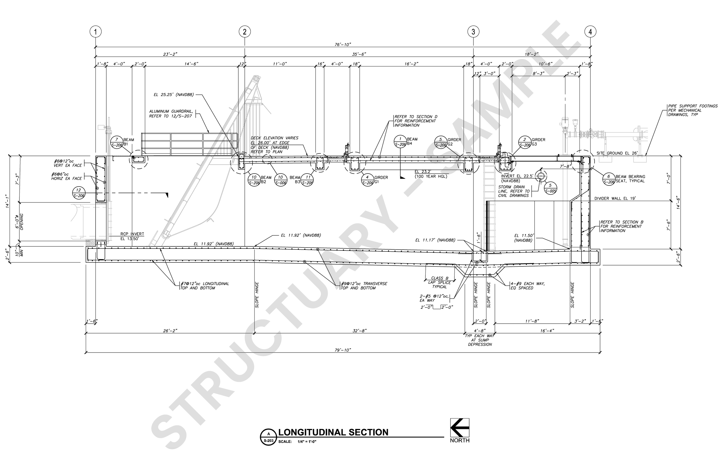
This project involved the structural design of a robust below-grade storm drain structure requiring high durability and load capacity. The primary challenge was designing a reinforced concrete pump station capable of resisting significant lateral earth pressures and hydrostatic forces while simultaneously supporting heavy mechanical pumping equipment.

The Engineering Solution

I performed the engineering and structural drafting for this project, utilizing advanced modeling techniques to ensure structural integrity and efficiency.

  • Finite Element Analysis (FEA): Utilized Visual Analysis to model the complex concrete geometry, optimizing the wall thickness and reinforcement to handle soil retention and pump vibration loads.

  • Steel & Anchorage Design: Detailed custom steel components, including heavy-duty grates, removable cover plates, and access equipment. This required precise calculation for pump anchorage to ensure stability under dynamic operating conditions.

  • Interdisciplinary Coordination: Worked closely with Civil, Mechanical, and Architectural teams to ensure that complex pipe penetrations and mechanical clearances were seamlessly integrated into the structural shell.

Previous
Previous

Llyod ADU Structural Design

Next
Next

Kettleman Station Canopy